(48431)
2-41-81, 2-41-83
(495)
280-02-42
О компании
Прайс-листы и каталоги
Оборудование
Галерея объектов
Наши партнеры
Контакты
АF 50
фасадная серия
- Описание системы
- Алюминевые профили
- Уплотнительные и пластиковые профили
- Комплектующие изделия
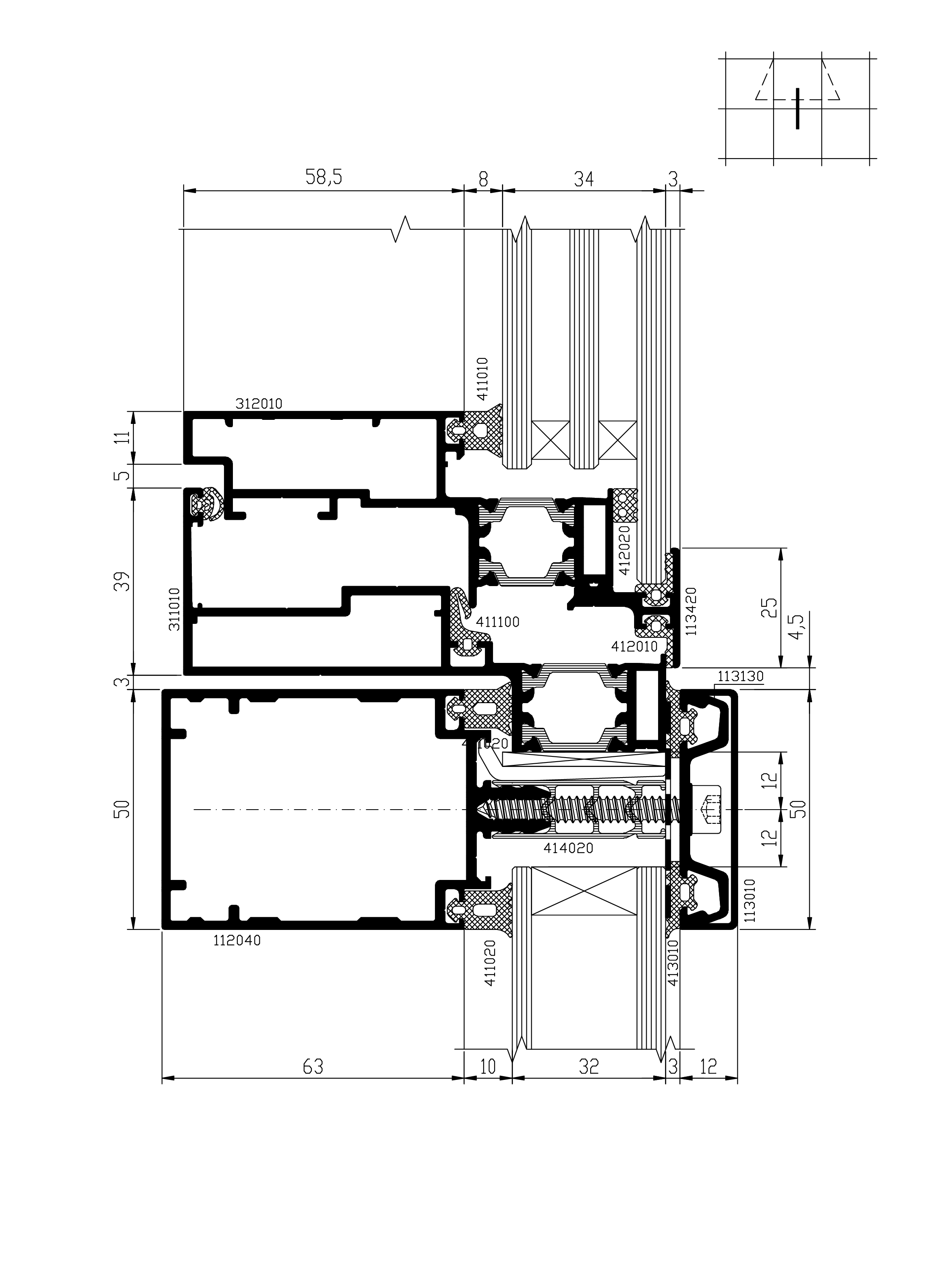
- Сечения конструкций
- Таблицы остекления
AWD 65
теплые окна
- Описание системы
- Алюминиевые профили
- Уплотнительные и пластиковые профили
- Комплектующие изделия
- Сечения конструкций
- Таблицы остекления
- Статический расчет элементов конструкции
- Типовые конструкции
- Технические условия
AWD 75
оконно-дверная серия
- Описание системы
AWD 85 wood
Оконная серия с деревянными накладками
AWD 45
холодные окна, двери, витражи
- Описание системы
- Алюминиевые профили
- Сечения конструкций
- Таблицы остекления
- Технические условия
AOC 85
офисные перегородки
- Общий вид
- Профили: алюминиевые и уплотнительные
- Комплектующие изделия
- Сечения конструкций
AVG 24
вентиляционные решетки
- Описание системы
- Алюминиевые профили
- Комплектующие изделия
- Обработка AVG 24
- Варианты решеток
- Оборудование AVG 24
- Сечения конструкций